LA PASSION DU BOIS SA

Ebénisterie Menuiserie Agencement Restauration

Arbre qui représente le logo de l'entreprise, la passion du bois  sa

Ebénisterie

Bibliothèque en cerisier avec marqueterie, lumière LED, miroir.

Bibliothèque cerisier, porte et incrustations de marqueterie, LED
porte de la bibliothèque avec incrustation de marqueterie, hauteur 3400mm.
Bibliothèque détail de l'angle avec le miroir et les parties chantournés
incrustation d'une hirondelle stylisée sur une surface en bois.
meuble multimédia avec cheminée, en noyer 1
Oiseau en vol au-dessus d'un arbre stylisées sur une porte en cerisier massif
meuble de cafétéria et parois en érable pour l'unifr, plateau en laiton

Réhabilitation du comptoir de la cafétéria de l'université de Fribourg selon des photos et plans  d'époque.

meuble de cafétéria et parois en érable pour l'unifr, plateau en laiton
détail meuble de cafétéria et parois en érable pour l'unifr, plateau en laiton
image de 1945 avec l'état d'origine
console en noyer 1
console en noyer 4
console en noyer détail d'ouverture du tiroir
console en noyer détail d'ouverture du tiroir

Console en noyer ou cerisier avec tiroir suspendu 

Prix 2950.—

Armoire en noyer fabriquer selon les principes artisanal des meubles sur-mesure
Armoire en noyer fabriquer selon les principes artisanal des meubles sur-mesure,détaille des tiroirs.
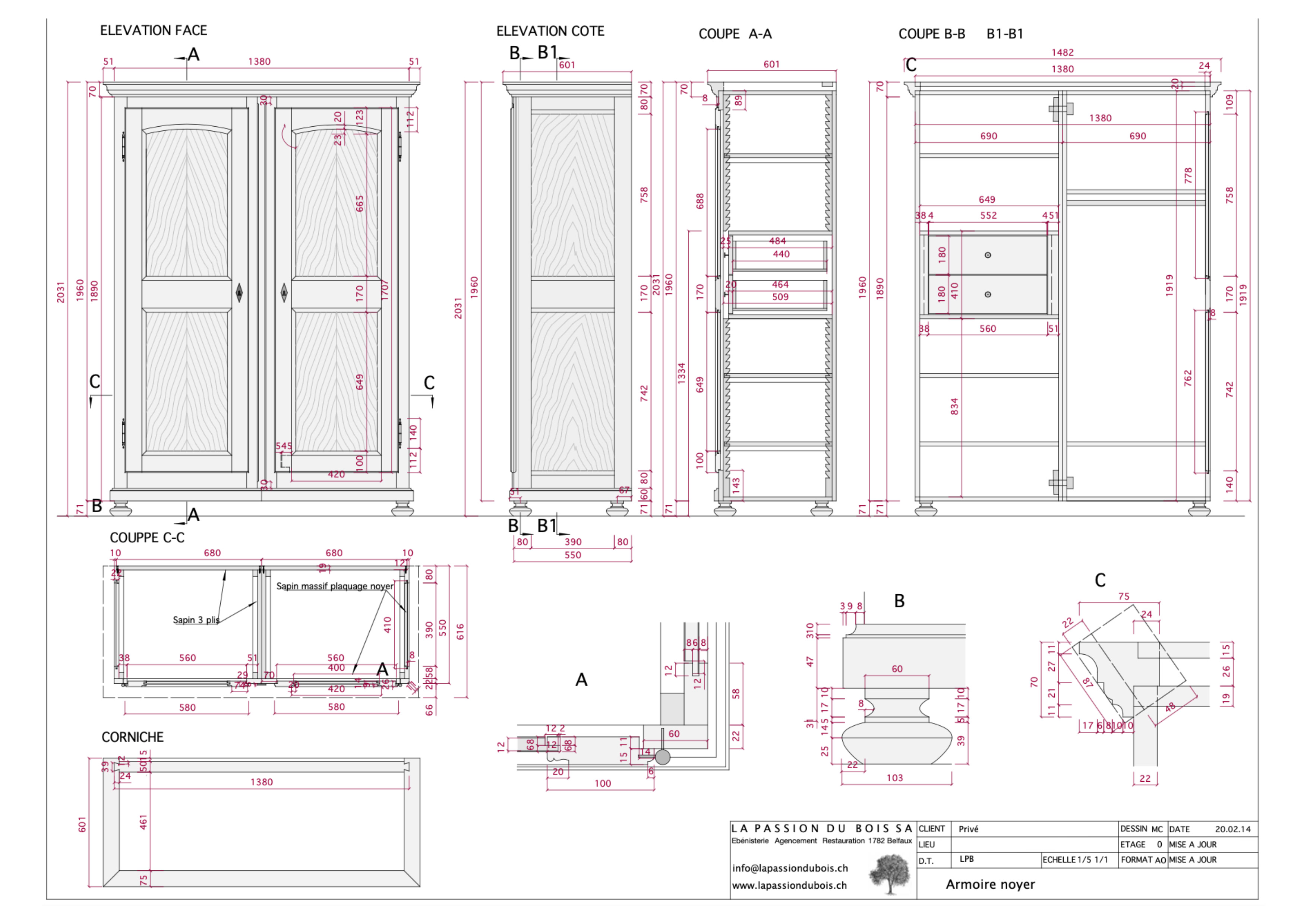
Plan technique d'une armoire avec des mesures détaillées, pour avoir toutes les informations pour la fabrication.
Armoire en noyer fabriquer selon les principes artisanal des meubles sur-mesure,détaille des tiroirs.

Armoire en noyer avec cabinet intérieur à deux tiroirs, exécuté comme examen de fin d’apprentissage

Lit en bois de cerisier massif
Meuble de chevet avec tiroir, suspendu, concept LPB 1
Meuble de chevet avec tiroir, suspendu, concept LPB 2

Ensemble de lit et meuble de chevet avec bibliothèque en bois de cerisier massif

Lit en bois de cerisier massif
Bibliothèque en cerisier, assemblée a queue d'aigle, bois massif. Concept la passion du Bois sa
Meuble de chevet avec tiroir, suspendu, concept la passion du Bois sa
Meuble salle de bain cerisier, vasque en Corian, pied laiton massif, concept Rapin Saiz
Meuble de salle de bain en cerisier avec vasque en Corian pieds en bronze massif, concept Rapin Saiz
Double lavabo moderne avec tiroirs blancs dans une salle de bain lumineuse
meuble de salle de bain en chêne massif 2
meuble de salle de bain en chêne massif évier en inox, tiroir suspendu, concept LVPH
Meuble de salle de bain avec quatre miroirs pivotant et partie centrale de rangement, concept
Meuble de salle de bain, deux tiroirs avec vasque en Corian

Divers meubles de salle de bain réalisés  sur mesure avec des matériaux de haut de gamme

Table carré en noyer massif
Gros plan sur le système d'ouverture de la rallonge 1.
Table en bois avec un plateau épais et un pied carréavec insertion d'une partie métallique entre le pied et le plateau.

Tables diverses en noyer ou cerisier fabriquées sur mesure

Gros plan sur le système d'ouverture de la rallonge.
Table à rallonge dite à l'italienne  rectangulaire avec quatre pieds gainés.
Table en bois de cerisier avec des pieds en métal brut
Table en bois de cerisier avec des pieds en métal brut
Table en bois directoir ancienne rectangulaire entourée de huit chaises en bois model fabriqué par la passion du bois sa.
Table en bois avec des angles arrondis sur un sol en bois.
Étagère moderne avec plusieurs livres et objets décoratifs sur un fond blanc.
Étagère moderne en angle avec des compartiments ouverts et fermés, contenant des livres et des objets décoratifs, située sous un escalier.
Bibliothèque multimédia avec agencement pour écran et appareil de diffusion, concept la passion du bois sa
suite de mobiliers pour une école à Vevey, concept Rapin-Saiz
suite de mobiliers pour une école à Vevey, concept Rapin-Saiz
Bibliothèque sur mesure, et posant la forme de la balustrade. MDF laqué


Bibliothèques et meubles ouverts

A rmoire multifonctions qui sert de meuble d'entrée, multimédia, cuisine bibliothèques.

Meuble multimédia avec armoire bibliothèque laque blanche brillante et mat selon zone

A rmoire multifonctions et qui sert de meuble d'entrée, multimédia, cuisine, bibliothèques, concept AETC
Lampe cerisier massif, LED, concept la passion du bois sa
lampe zebrano murale

Lampes avec divers design

lampe led noyer massif

LA PASSION DU BOIS SA   ROUTE D’AUTAFOND 1   1782 BELFAUX, FRIBOURG, SUISSE        

Téléphone: + 41-26 475 45 65              info(at)lapassiondubois.ch

logo entreprise formatrice
LOGO FRECEM
logo afmec
logo lignum
logo bois suisse